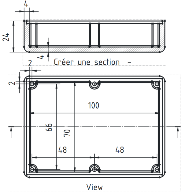
Cotes

ObjectifsObjectifs

Utiliser les commandes de l’atelier TechDraw Atelier TechDraw :

Truc & astuceTaille des points de saisie pour la cotation

  • Si la taille des points pour la saisie des cotes est trop grosse, vous pouvez la diminuer : Il faut sélectionner la commande Édition → Préférences, rubrique TechDraw → Échelle et diminuer la valeur de l’échelle des sommets ;

    Échelle des sommets (tailles des points de sélection pour la cotation)

Tâches à réaliserTâches à réaliser

  • A l’aide de la commande Cote Insérer une cote, ajouter les cotes suivantes :

    Cotation de la vue principale et de la coupe
  • Ajouter la lettre A pour repérer la section  et ajouter une légende (caption) « Section AA » à la vue en coupe  ;